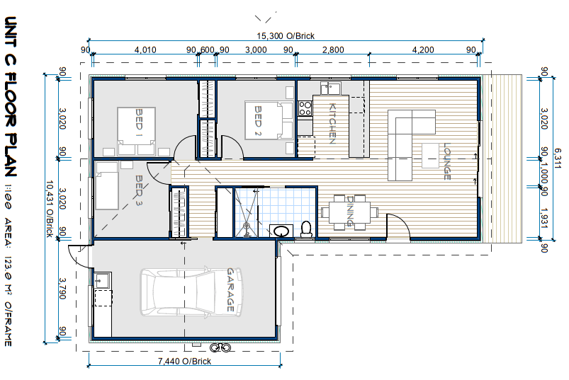
Building
These Clutha Central homes will be clad in brick with some feature linea board, they will have a coloursteel roof & spouting with coloured PVC downpipes. Double glazing with sliding doors to outside patio area.
Roomy single garage with internal access, laundry area and pedestrian access to outside.
Appliances
Fisher & Paykel oven, cooktop & extractor
Daikin heat pump
Electronic door locks
Fitout
Carpet in bedrooms.
Units B & C have built in wardrobes in all 3 bedrooms.
Bathroom with underfloor heated tiles.

