John Street
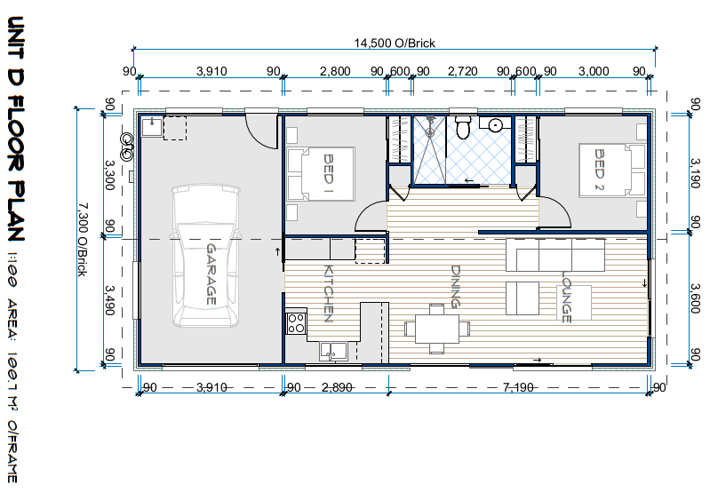
The aim of Clutha Central is to build functional, warm modern homes within close proximity to the town centre retail and service shops. This first stage for the Clutha Central development will consist of four standalone two bedroom homes on John St. The below images are indicative only, colours & landscaping may differ.
Building
The Clutha Central homes will be clad in brick with some feature linea board. Coloursteel roof, spouting & coloured PVC downpipes. Double glazing with sliding doors into the living area.
A roomy single car garage with access straight into the kitchen. The laundry area is also in the garage with pedestrian door access to the outside.
Appliances
Fisher & Paykel oven, cook top & extractor.
Daikin heat pump.
Electronic door locks.
Fitout
Carpet in bedrooms, underfloor heated tiles in bathroom, timber look planking floor in kitchen.
Mobility friendly bathroom.

